
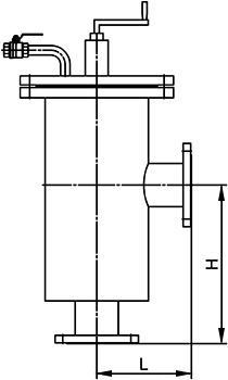
手搖刷式過濾器一種利用濾(lv)筒(tong)內置的(de)(de)轉(zhuan)動軸(zhou)與(yu)(yu)刷(shua)(shua)(shua)子(zi),通過人力手動搖(yao)動手柄(bing)的(de)(de)方(fang)式清洗濾(lv)網(wang)上(shang)的(de)(de)堵塞物(wu)(wu),再(zai)經(jing)筒(tong)蓋(gai)上(shang)安(an)裝(zhuang)的(de)(de)排污閥(fa)排出的(de)(de)濾(lv)水(shui)器(qi),其刷(shua)(shua)(shua)式構造由轉(zhuan)動軸(zhou)、刷(shua)(shua)(shua)架和條(tiao)刷(shua)(shua)(shua)等部件(jian)組成,轉(zhuan)軸(zhou)穿(chuan)過筒(tong)體中部頂蓋(gai),帶清洗刷(shua)(shua)(shua)的(de)(de)那端(duan)被安(an)裝(zhuang)在(zai)筒(tong)形濾(lv)筒(tong)內,刷(shua)(shua)(shua)子(zi)緊貼在(zai)濾(lv)網(wang)上(shang),而蓋(gai)外側的(de)(de)那頭則裝(zhuang)有一簡(jian)便(bian)的(de)(de)手柄(bing),當(dang)需要清洗濾(lv)網(wang)上(shang)的(de)(de)雜質時,只需打(da)開手動球閥(fa),順時針(zhen)方(fang)向(xiang)搖(yao)動手柄(bing)驅(qu)動轉(zhuan)軸(zhou)帶動刷(shua)(shua)(shua)子(zi)旋(xuan)轉(zhuan),即可(ke)將篩網(wang)上(shang)的(de)(de)堵塞物(wu)(wu)質刷(shua)(shua)(shua)下(xia),并在(zai)管道水(shui)流壓力的(de)(de)作(zuo)用下(xia),將刷(shua)(shua)(shua)洗下(xia)來的(de)(de)顆粒物(wu)(wu)從排放口排出。本產品(pin)主要特點(dian)是清洗排污工作(zuo)可(ke)在(zai)管線運行過程中進行,無需斷流,更不(bu)必拆卸(xie)上(shang)蓋(gai),不(bu)影響設備的(de)(de)正常運行,其安(an)裝(zhuang)時應注意保持水(shui)流向(xiang)與(yu)(yu)外殼(ke)箭頭方(fang)向(xiang)一致。
| 序號 | 部件名稱 | 材料名稱 | |||||
| 1 | 筒 體 | Q235B | 20# | S30408 | S30403 | S31608 | S31603 |
| 2 | 法 蘭 | Q235B | Q235B | S30408 | S30403 | S31608 | S31603 |
| 3 | 濾筒濾網 | 304 | 304 | 304 | 304L | 316 | 316L |
| 4 | 清 洗 刷 | 硬質塑料纖維、豬鬃毛、骨質尼龍、不銹鋼絲 | |||||
| 5 | 刷 架 | Q235B | Q235B | S30408 | S30403 | S31608 | S31603 |
| 6 | 頂 蓋 | Q235B | Q235B | S30408 | S30403 | S31608 | S31603 |
| 7 | 排 污 閥 | CF8 | CF8 | CF8 | CF3 | CF8M | CF3M |
| 公稱壓力PN(MPa) | 0.25 | 0.6 | 1.0 | 1.6 | 2.0 | 2.5 |
| 強度試驗壓力(MPa) | 0.375 | 0.9 | 1.5 | 2.4 | 3.0 | 3.75 |
| 密封性能試驗壓力(MPa) | 0.275 | 0.66 | 1.1 | 1.76 | 2.2 | 2.75 |
| 設計制造 | JB/T 7538-2016、SH/T 3411-2017、GB/T 26114-2010 | |||||
| 法蘭標準 | JB/T 81、GB/T 9119、HG/T 20592、HG/T 20615、SH/T 3406、ASME B16.5等 | |||||
| 檢驗試驗 | JB/T 7538-2016、SH/T 3411-2017、GB/T 26114-2010 | |||||
| 過濾精度 | 5目 ~ 150目 | |||||
| 公稱壓力 PN | 公稱通徑 DN | 結構尺寸/mm | 公稱壓力 PN | 公稱通徑 DN | 結構尺寸/mm | ||
| L | H | L | H | ||||
| 16 | 50 | 240 | 355 | 16 | 200 | 310 | 550 |
| 65 | 240 | 355 | 250 | 360 | 650 | ||
| 80 | 250 | 400 | 300 | 420 | 750 | ||
| 100 | 250 | 420 | 400 | 500 | 900 | ||
| 125 | 280 | 450 | 500 | 550 | 1150 | ||
| 150 | 280 | 480 | 600 | 600 | 1400 | ||
| 以上尺寸僅供參考,表中未列出的其他規格參數,請咨詢汗越閥門技術部! | |||||||

