
電站止回閥是一(yi)種適用(yong)于工作(zuo)壓(ya)(ya)(ya)力(li)小(xiao)于等(deng)于45.0MPa,工作(zuo)溫度(du)不大(da)于630℃的(de)(de)(de)(de)火(huo)力(li)發電廠汽、水(shui)系統用(yong)法蘭(lan)、焊接連接的(de)(de)(de)(de)止(zhi)回(hui)閥(fa),其(qi)安裝在(zai)(zai)水(shui)平管(guan)道(dao)中,依靠介(jie)質流(liu)(liu)動(dong)(dong)的(de)(de)(de)(de)壓(ya)(ya)(ya)力(li)推(tui)動(dong)(dong)閥(fa)瓣(ban)沿(yan)垂直(zhi)于水(shui)平面(mian)的(de)(de)(de)(de)方(fang)向上(shang)(shang)下運(yun)(yun)動(dong)(dong)來自動(dong)(dong)啟(qi)閉(bi)閥(fa)門(men),介(jie)質回(hui)流(liu)(liu)時(shi)(shi)受(shou)到了閥(fa)瓣(ban)的(de)(de)(de)(de)阻(zu)擋而起到防倒流(liu)(liu)作(zuo)用(yong)。該閥(fa)在(zai)(zai)設計時(shi)(shi),可(ke)根(gen)據用(yong)戶要(yao)求在(zai)(zai)閥(fa)瓣(ban)上(shang)(shang)端安裝一(yi)個(ge)彈(dan)簧,從而保證在(zai)(zai)閥(fa)門(men)關閉(bi)時(shi)(shi)的(de)(de)(de)(de)密(mi)封性,工作(zuo)時(shi)(shi),當管(guan)道(dao)流(liu)(liu)體按照指定方(fang)向流(liu)(liu)入,閥(fa)瓣(ban)在(zai)(zai)介(jie)質力(li)的(de)(de)(de)(de)作(zuo)用(yong)下,克服(fu)自身重力(li)以及(ji)彈(dan)簧力(li)作(zuo)用(yong),沿(yan)導向座向上(shang)(shang)運(yun)(yun)動(dong)(dong),閥(fa)門(men)自動(dong)(dong)開啟(qi);若流(liu)(liu)體作(zuo)用(yong)力(li)減小(xiao)或(huo)反向流(liu)(liu)動(dong)(dong),使閥(fa)瓣(ban)上(shang)(shang)方(fang)壓(ya)(ya)(ya)力(li)大(da)于其(qi)下方(fang)壓(ya)(ya)(ya)力(li),閥(fa)瓣(ban)則落下,在(zai)(zai)自身重力(li)以及(ji)彈(dan)簧力(li)作(zuo)用(yong)下與閥(fa)座緊(jin)密(mi)貼合,從而使介(jie)質不能通過,即流(liu)(liu)體無法逆流(liu)(liu)。本產(chan)品可(ke)根(gen)據不同的(de)(de)(de)(de)公(gong)稱壓(ya)(ya)(ya)力(li),將閥(fa)體中法蘭(lan)與閥(fa)蓋設計成法蘭(lan)螺栓連接或(huo)內壓(ya)(ya)(ya)自密(mi)封式(shi)結構。
| 序號 | 部件名稱 | 材料名稱 | |||||
| 1 | 閥 體 | A216 WCB | A217 WC6 | A217 WC9 | A217 C12A | ZG20CrMoV | ZG15Cr1Mo1V |
| 2 | 閥 座 | A105 | A182 F11 | A182 F22 | A182 F91 | 12Cr1MoV | 15Cr1Mo1V |
| 3 | 閥 瓣 | A105 | A182 F11 | A182 F22 | A182 F91 | 12Cr1MoV | 15Cr1Mo1V |
| 4 | 閥 蓋 | A105 | A182 F11 | A182 F22 | A182 F91 | 12Cr1MoV | 15Cr1Mo1V |
| 5 | 壓 蓋 | A182 F6a CL.2 | A182 F11 | A182 F22 | A182 F91 | 12Cr1MoV | 15Cr1Mo1V |
| 6 | 四 開 環 | A182 F6a CL.2 | A182 F11 | A182 F22 | A182 F91 | 12Cr1MoV | 15Cr1Mo1V |
| 7 | 密 封 環 | A182 F304 | A182 F304 | A182 F304 | A182 F316 | A182 F316 | A182 F316 |
| 8 | 螺 栓 | A193 B7 | A193 B16 | A193 B16 | A193 B16 | 25Cr2Mo1VA | 25Cr2Mo1VA |
| 9 | 螺 母 | A194 2H | A194 16 | A194 16 | A194 16 | 25Cr2Mo1VA | 25Cr2Mo1VA |
| 公稱壓力PN(MPa) | 10.0 | 16.0 | 20.0 | 25.0 | 32.0 | 42.0 |
| 殼體強度試驗壓力(MPa) | 15.0 | 24.0 | 30.0 | 37.5 | 48.0 | 63.0 |
| 水壓密封試驗壓力(MPa) | 11.0 | 17.6 | 22.0 | 27.5 | 35.2 | 46.2 |
| 氣密封試驗壓力(MPa) | 0.5~0.7 | 0.5~0.7 | 0.5~0.7 | 0.5~0.7 | 0.5~0.7 | 0.5~0.7 |
| 設計制造 | NB/T 47044、ASME B16.34、JIS E-101 | |||||
| 結構長度 | GB/T 12221、ASME B16.10、JIS E-101 | |||||
| 法蘭尺寸 | JB/T 79、GB/T 9124.1、HG/T 20592、SH/T 3406、ASME B16.5等 | |||||
| 檢驗試驗 | NB/T 47044、API 598、JIS E-101 | |||||
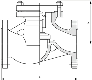
| 公稱壓力 PN | 公稱尺寸 DN | 外形尺寸/mm | 公稱壓力 PN | 公稱尺寸 DN | 外形尺寸/mm | ||
| L | H | L | H | ||||
| 100 | 50 | 300 | 175 | 160 | 50 | 300 | 175 |
| 65 | 340 | 193 | 65 | 340 | 193 | ||
| 80 | 380 | 238 | 80 | 380 | 238 | ||
| 100 | 430 | 269 | 100 | 430 | 269 | ||
| 125 | 500 | 313 | 125 | 500 | 313 | ||
| 150 | 550 | 355 | 150 | 550 | 355 | ||
| 200 | 650 | 403 | 200 | 650 | 403 | ||
| 表中未列出的其他規格參數,請咨詢汗越閥門技術部! | |||||||

