
電動保溫球閥由(you)外(wai)(wai)部焊接有金屬夾(jia)套(tao)的(de)(de)(de)(de)閥(fa)(fa)(fa)(fa)體(ti)、閥(fa)(fa)(fa)(fa)座、球體(ti)、閥(fa)(fa)(fa)(fa)桿(gan)(gan)等(deng)(deng)零(ling)部件和(he)電(dian)(dian)動(dong)執行(xing)機構組成(cheng),電(dian)(dian)裝(zhuang)(zhuang)接通(tong)(tong)電(dian)(dian)源后,通(tong)(tong)過將指(zhi)令信(xin)號(hao)轉化為相應的(de)(de)(de)(de)位移,驅動(dong)球桿(gan)(gan)旋(xuan)轉,進(jin)而控制(zhi)閥(fa)(fa)(fa)(fa)門的(de)(de)(de)(de)開啟和(he)關閉,其閥(fa)(fa)(fa)(fa)桿(gan)(gan)穿過在(zai)閥(fa)(fa)(fa)(fa)體(ti)上(shang)(shang)部的(de)(de)(de)(de)導孔,并采(cai)用(yong)(yong)填料密封,填料上(shang)(shang)方設置壓蓋(gai)進(jin)行(xing)固(gu)(gu)定,閥(fa)(fa)(fa)(fa)桿(gan)(gan)上(shang)(shang)端(duan)與電(dian)(dian)動(dong)執行(xing)器(qi)相連,下端(duan)連接安裝(zhuang)(zhuang)在(zai)閥(fa)(fa)(fa)(fa)體(ti)內部密封座上(shang)(shang)的(de)(de)(de)(de)球體(ti)。該閥(fa)(fa)(fa)(fa)閥(fa)(fa)(fa)(fa)體(ti)外(wai)(wai)壁焊裝(zhuang)(zhuang)帶有保(bao)溫加(jia)熱流體(ti)進(jin)、出口的(de)(de)(de)(de)保(bao)溫夾(jia)套(tao),此(ci)夾(jia)套(tao)主(zhu)要用(yong)(yong)于流通(tong)(tong)蒸汽(qi)或導熱油(you)等(deng)(deng),從而即(ji)使外(wai)(wai)界溫度(du)降到了零(ling)度(du)以外(wai)(wai),它仍能(neng)保(bao)持流路暢通(tong)(tong),閥(fa)(fa)(fa)(fa)門啟閉自如(ru),管內物料能(neng)通(tong)(tong)能(neng)斷。本產品(pin)具有密封性能(neng)可靠,能(neng)有效防(fang)止閥(fa)(fa)(fa)(fa)內介質凝固(gu)(gu)或結晶等(deng)(deng)功能(neng),因此(ci),特(te)適(shi)用(yong)(yong)于重(zhong)油(you)、瀝(li)青(qing)、粘度(du)食(shi)品(pin)、膠(jiao)類(lei)等(deng)(deng)介質。
| 序號 | 部件名稱 | 材料名稱 | ||||
| 1 | 閥 體 | WCB | CF8 | CF3 | CF8M | CF3M |
| 2 | 閥座壓蓋 | WCB | CF8 | CF3 | CF8M | CF3M |
| 3 | 閥 座 | R-PTFE、PTFE、TEFLON、NYLON、PPL、PEEK、DEVLON、不銹鋼+硬質合金 | ||||
| 4 | 球 體 | 2Cr13 | 304 | 304L | 316 | 316L |
| 5 | 閥 桿 | 2Cr13 | 304 | 304L | 316 | 316L |
| 6 | 填 料 | GRAPHITE、R-PTFE、PTFE、TEFLON、PCTFE | ||||
| 7 | 填料壓板 | WCB | CF8 | CF3 | CF8M | CF3M |
| 8 | 保溫夾套 | Q235B | 304 | 304 | 304 | 304 |
| 公稱壓力PN(MPa) | 1.6 | 2.5 | 4.0 | 6.3 | 10.0 |
| 殼體試驗壓力(MPa) | 2.4 | 3.75 | 6.0 | 9.45 | 15.0 |
| 高壓液體密封試驗壓力(MPa) | 1.76 | 2.75 | 4.4 | 6.93 | 11.0 |
| 低壓氣體密封試驗壓力(MPa) | 0.4~0.7 | 0.4~0.7 | 0.4~0.7 | 0.4~0.7 | 0.4~0.7 |
| 設計制造 | JB/T 13458、GB/T 12237、GB/T 21385、API 608、ASME B16.34 | ||||
| 結構長度 | JB/T 13458、GB/T 12221、ASME B16.10 | ||||
| 法蘭標準 | JB/T 79、GB/T 9113、HG/T 20592、HG/T 20615、SH/T 3406、ASME B16.5等 | ||||
| 檢驗試驗 | GB/T 13927、GB/T 26480、JB/T 9092、API 598 | ||||
| 電源電壓 | 單相220V、三相380V、遠程DC24V (50Hz) | ||||
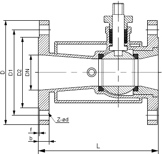
| 公稱壓力 PN | 公稱通徑 DN | 外形及連接尺寸/mm | |||||
| L | D | D1 | D2 | b-f | Z-?d | ||
| 16 | 15 | 140 | 95 | 65 | 45 | 16-2 | 4-14 |
| 20 | 140 | 105 | 75 | 58 | 18-2 | 4-14 | |
| 25 | 160 | 115 | 85 | 68 | 18-2 | 4-14 | |
| 32 | 165 | 140 | 100 | 78 | 18-2 | 4-18 | |
| 40 | 180 | 150 | 110 | 88 | 18-2 | 4-18 | |
| 50 | 200 | 165 | 125 | 102 | 18-2 | 4-18 | |
| 65 | 220 | 185 | 145 | 122 | 18-2 | 8-18 | |
| 80 | 250 | 200 | 160 | 138 | 20-2 | 8-18 | |
| 100 | 280 | 220 | 180 | 158 | 20-2 | 8-18 | |
| 125 | 320 | 250 | 210 | 188 | 22-2 | 8-18 | |
| 150 | 360 | 285 | 240 | 212 | 22-2 | 8-22 | |
| 200 | 400 | 340 | 295 | 268 | 24-2 | 12-22 | |
| 表中未列出的其他規格尺寸,請咨詢汗越閥門技術部! | |||||||

如果你需訂購我廠保溫球閥產品,咨詢時煩請說明公(gong)稱(cheng)壓力、公(gong)稱(cheng)通(tong)徑、閥(fa)體材質、內件材料、工作(zuo)介質、使(shi)用溫度等,本產品有一片式(shi)和二片式(shi)兩種結構形式(shi)。
